- Rekuperacja zapewnia stałą cyrkulację świeżego powietrza w budynku
- System pozwala na odzyskiwanie do 40% ciepła z powietrza wywiewanego
- Poprawia jakość powietrza poprzez filtrację alergenów i zanieczyszczeń
- Jest niezbędna w szczelnych, energooszczędnych budynkach
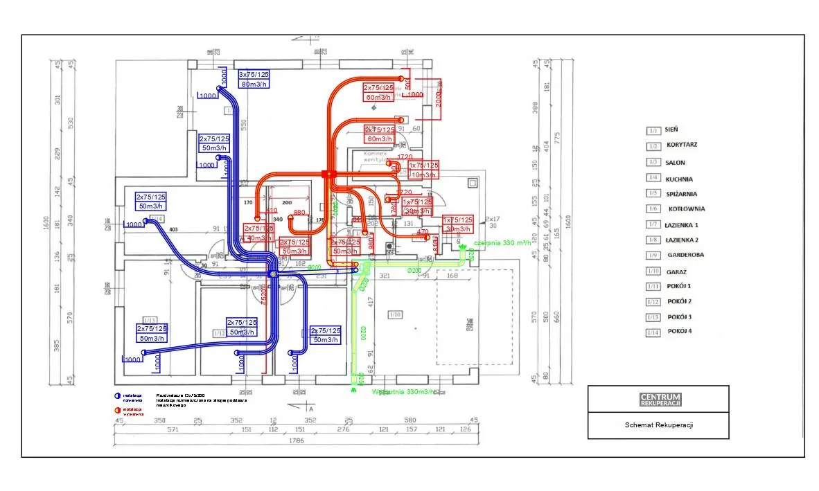
- Składa się z czerpni, kanałów, centrali z wymiennikiem ciepła, anemostatów i wyrzutni
Rekuperacja - co to jest i jak działa?
Rekuperacja to zaawansowany system wentylacji mechanicznej, który zapewnia efektywną wymianę powietrza w budynkach. Jej głównym zadaniem jest dostarczanie świeżego powietrza z zewnątrz, jednocześnie usuwając zużyte powietrze z pomieszczeń. Kluczowym elementem tego systemu jest odzysk ciepła w rekuperacji, co oznacza, że ciepło z powietrza wywiewanego jest wykorzystywane do ogrzania świeżego powietrza napływającego do budynku.
Zastosowanie rekuperacji w domu energooszczędnym przynosi wiele korzyści. System ten nie tylko poprawia jakość powietrza wewnątrz budynku, ale także znacząco redukuje koszty ogrzewania. Dodatkowo, rekuperacja eliminuje problem wilgoci i pleśni, często występujący w szczelnych, nowoczesnych domach.
Główne elementy systemu rekuperacji
Czerpnia powietrza i kanały wentylacyjne
Czerpnia powietrza to element schematu rekuperacji umieszczony na zewnętrznej ścianie budynku, odpowiedzialny za pobieranie świeżego powietrza. Powietrze to jest następnie transportowane przez system kanałów wentylacyjnych do centrali rekuperacyjnej. Kanały te tworzą sieć, która rozprowadza powietrze po całym budynku.Centrala wentylacyjna z wymiennikiem ciepła
Centrala wentylacyjna z wymiennikiem to serce systemu rekuperacji. W jej wnętrzu znajduje się wymiennik ciepła, gdzie dochodzi do kluczowego procesu wymiany energii między powietrzem wywiewanym a nawiewanym.
Proces ten polega na przekazywaniu ciepła z ciepłego, zużytego powietrza do chłodnego, świeżego powietrza bez ich bezpośredniego mieszania. Dzięki temu świeże powietrze jest wstępnie ogrzane przed wprowadzeniem do pomieszczeń.
Anemostaty i wyrzutnia
Anemostaty to elementy systemu umieszczone w pomieszczeniach, odpowiedzialne za rozprowadzanie świeżego powietrza. Wyrzutnia, podobnie jak czerpnia, znajduje się na zewnątrz budynku i służy do usuwania zużytego powietrza. Te elementy zamykają obieg powietrza w systemie rekuperacji.
Czytaj więcej: Farba ceramiczna na lateksową: jak skutecznie ją zastosować?
Zasada działania wymiennika ciepła
Wymiennik ciepła w rekuperatorze działa na zasadzie przenoszenia energii cieplnej między dwoma strumieniami powietrza. Najczęściej stosowane są wymienniki krzyżowe, gdzie strumienie powietrza przepływają prostopadle do siebie, oraz przeciwprądowe, zapewniające jeszcze wyższą efektywność.
W wymienniku przeciwprądowym strumienie powietrza płyną w przeciwnych kierunkach, co pozwala na odzysk nawet do 95% ciepła. To sprawia, że ten typ wymiennika jest szczególnie polecany w rekuperacji w domu energooszczędnym.
Schemat przepływu powietrza w systemie rekuperacji
| 1. Pobór świeżego powietrza przez czerpnię | 2. Transport powietrza kanałami do centrali |
| 3. Wymiana ciepła w centrali wentylacyjnej | 4. Rozprowadzenie ogrzanego powietrza przez anemostaty |
| 5. Zbieranie zużytego powietrza z pomieszczeń | 6. Usuwanie zużytego powietrza przez wyrzutnię |
Korzyści z zastosowania rekuperacji w domu
- Znaczne oszczędności na kosztach ogrzewania
- Poprawa jakości powietrza wewnątrz budynku
- Eliminacja problemu wilgoci i pleśni
- Filtracja powietrza z alergenów i zanieczyszczeń
- Stała wymiana powietrza bez konieczności otwierania okien
- Zwiększenie komfortu życia mieszkańców
Rekuperacja w domu energooszczędnym to inwestycja w zdrowie i komfort. System ten nie tylko poprawia jakość powietrza, ale także znacząco redukuje koszty ogrzewania. Dodatkowo, eliminuje problem wilgoci i pleśni, często występujący w szczelnych, nowoczesnych domach.
Efektywność energetyczna systemu rekuperacji
System rekuperacji może odzyskać nawet do 95% ciepła z powietrza wywiewanego, co przekłada się na znaczne oszczędności energetyczne. W praktyce oznacza to, że koszty ogrzewania mogą spaść nawet o 50% w porównaniu z tradycyjnymi systemami wentylacji.
W przeciwieństwie do wentylacji grawitacyjnej, która powoduje straty ciepła, rekuperacja pozwala na efektywne wykorzystanie energii. To sprawia, że rekuperacja w domu energooszczędnym staje się standardem w nowoczesnym budownictwie.
- Dobierz moc rekuperatora do wielkości domu i liczby mieszkańców
- Zwróć uwagę na współczynnik odzysku ciepła - im wyższy, tym lepiej
- Wybierz system z możliwością regulacji przepływu powietrza
- Upewnij się, że system posiada filtry wysokiej jakości
Instalacja i konserwacja systemu rekuperacji
Proces instalacji rekuperatora
Instalacja rekuperatora to zadanie dla profesjonalistów. Proces rozpoczyna się od projektu systemu, uwzględniającego specyfikę budynku. Następnie montowane są kanały wentylacyjne, centrala rekuperacyjna oraz pozostałe elementy systemu.
Kluczowe jest odpowiednie umiejscowienie centrali - powinna być łatwo dostępna dla celów konserwacji. Najczęściej instaluje się ją na poddaszu, w piwnicy lub w specjalnie przygotowanym pomieszczeniu technicznym.
Konserwacja i utrzymanie systemu
- Regularna wymiana filtrów (co 3-6 miesięcy)
- Czyszczenie wymiennika ciepła (raz w roku)
- Kontrola drożności kanałów wentylacyjnych
- Sprawdzanie szczelności połączeń
- Kalibracja systemu (w razie potrzeby)
Regularna konserwacja jest kluczowa dla efektywnego działania systemu rekuperacji. Zaleca się przeprowadzanie kompleksowego przeglądu raz w roku, najlepiej przed sezonem grzewczym.
Czy rekuperacja sprawdzi się w Twoim domu?
Rekuperacja w domu energooszczędnym sprawdzi się najlepiej w budynkach o wysokiej szczelności. Jest szczególnie polecana dla domów pasywnych i energooszczędnych, gdzie tradycyjna wentylacja grawitacyjna byłaby niewystarczająca.
Warto rozważyć montaż rekuperacji w przypadku alergików lub astmatyków, gdyż system ten znacząco poprawia jakość powietrza. Rekuperacja sprawdzi się również w domach położonych w hałaśliwych okolicach, ponieważ eliminuje potrzebę otwierania okien dla wentylacji. Niemniej, przed podjęciem decyzji warto skonsultować się ze specjalistą, który oceni indywidualne potrzeby i możliwości budynku.
Rekuperacja: Klucz do efektywnej wentylacji i oszczędności energii
Schemat rekuperacji to innowacyjne rozwiązanie, które rewolucjonizuje sposób, w jaki myślimy o wentylacji i efektywności energetycznej naszych domów. System ten nie tylko zapewnia stały dopływ świeżego powietrza, ale także znacząco redukuje koszty ogrzewania, odzyskując ciepło z powietrza wywiewanego.
Kluczowe elementy, takie jak czerpnia powietrza, centrala wentylacyjna z wymiennikiem ciepła oraz anemostaty, współpracują ze sobą, tworząc efektywny obieg powietrza. Dzięki temu rekuperacja w domu energooszczędnym staje się nie tylko możliwa, ale wręcz niezbędna dla osiągnięcia optymalnego komfortu i oszczędności.
Warto pamiętać, że choć instalacja rekuperatora wymaga początkowej inwestycji, długoterminowe korzyści znacznie przewyższają koszty. Poprawa jakości powietrza, eliminacja wilgoci i pleśni oraz znaczące oszczędności na ogrzewaniu to tylko niektóre z zalet tego systemu. Dla osób rozważających budowę lub modernizację domu, rekuperacja powinna być poważnie brana pod uwagę jako element nowoczesnego, zdrowego i energooszczędnego budownictwa.





