
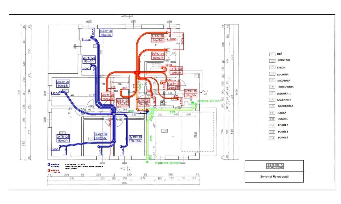
Schemat rekuperacji: Jak działa system odzysku ciepła w domu?
Poznaj schemat rekuperacji i zasady działania systemu odzysku ciepła w domu. Dowiedz się, jak efektywnie wentylować pomieszczenia i oszczędzać energię dzięki nowoczesnej technologii.
Schemat rekuperacji: Jak działa system odzysku ciepła w domu?
Poznaj schemat rekuperacji i zasady działania systemu odzysku ciepła w domu. Dowiedz się, jak efektywnie wentylować pomieszczenia i oszczędzać energię dzięki nowoczesnej technologii.
Ile kosztuje projekt elewacji domu? Poznaj ceny i oszczędzaj
Dowiedz się, ile kosztuje projekt elewacji domu i jak zaoszczędzić. Poznaj czynniki wpływające na cenę, rodzaje projektów i skuteczne sposoby negocjacji z architektem.
Kostka brukowa przed czy po elewacji? Uniknij kosztownych błędów
Dowiedz się, czy kostka brukowa przed czy po elewacji to lepsze rozwiązanie. Poznaj kluczowe aspekty kolejności prac budowlanych i uniknij kosztownych błędów w planowaniu robót zewnętrznych.
Cena 1m2 elewacji: Ile kosztuje wykończenie fasady domu?
Poznaj średnie ceny elewacji za m2 w Polsce. Sprawdź, ile kosztuje wykończenie fasady domu, jakie materiały wybrać i jak zaoszczędzić na ociepleniu. Praktyczne porady i kalkulacje kosztów.
Wełna skalna na elewację: jakie są rodzaje i ceny?
Poznaj rodzaje i ceny wełny skalnej na elewacje. Dowiedz się, jak wybrać najlepsze płyty z wełny skalnej i jaki klej stosować. Sprawdź zalety i parametry tego materiału izolacyjnego.
Jaki kolor elewacji pasuje do zielonego dachu? 5 najlepszych opcji
Poznaj 5 najlepszych kolorów elewacji do zielonego dachu. Dowiedz się, jak osiągnąć harmonię kolorów i stworzyć idealną kolorystykę domu. Praktyczne porady i inspiracje.
Kąt elewacji: Definicja, zastosowania i pomiar w budownictwie
Dowiedz się, co to jest kąt elewacji i jak wpływa na efektywność budynku. Poznaj metody pomiaru, zastosowania w architekturze i energetyce słonecznej oraz optymalizację kąta nachylenia dachu.
Ile kosztuje farba na elewacje domu? Sprawdź ceny i oblicz koszty
Poznaj rzeczywiste koszty farby na elewację domu. Sprawdź ceny różnych rodzajów farb, oblicz wydatki i dowiedz się, jak zaoszczędzić na remoncie elewacji bez utraty jakości.
Jak samemu pomalować elewację domu: Prosty poradnik krok po kroku
Dowiedz się, jak samemu pomalować elewację domu. Poznaj kluczowe etapy, dobierz odpowiednie narzędzia i farby. Praktyczne wskazówki dla trwałego i estetycznego efektu renowacji fasady.
Tynk wapienny zewnętrzny: jakie ma zalety i jak go montować?
Poznaj zalety tynku wapiennego zewnętrznego i dowiedz się, jak prawidłowo go nakładać. Sprawdź, czym różni się od tynku cementowego i jak pielęgnować elewację z tynku wapiennego.